Duplex nou cu 4 camere de vânzare în Verdi Park Boutique Apartments

Str. Gheorghe Țițeica nr. 162-164
Disponibil
595000 €
+ TVA
719.950
€ TVA Inclus
P.01
4
Camere
4
Băi
1
Parcări
231.46
Suprafață
2026
An Finalizare

Detalii

Detalii

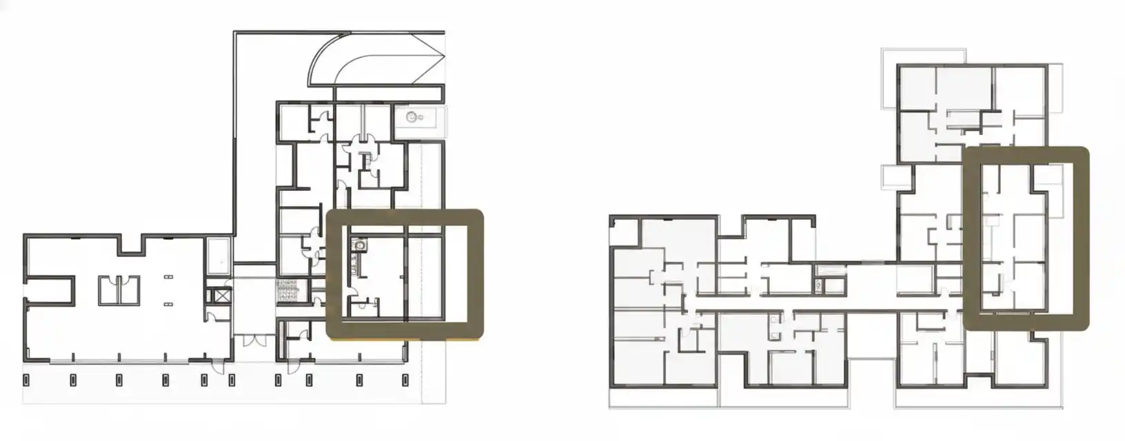
  • 1. Hol 8.64 m²
  • 2. Bucatarie 14.86 m²
  • 3. Spalatorie 5.36 m²
  • 4. Living 23.56 m²
  • 5. GS 2.84 m²
  • 6. Baie 5.01 m²
  • 7. Dormitor 16.34 m²
  • 8. Baie 4.98 m²
  • 9. Dormitor 14.58 m²
  • 10. Hol 11.14 m²
  • 11. Dormitor+Dresing 22.78 m²
  • 12. Baie 4.81 m²
  • 13. Terasa 11.78 m²
  • 14. Terasa 14.28 m²
  • 15. Curte 23.75 m²
  • Suprafață Utilă 184.72 m²
  • Suprafață Totală 231.46 m²

Releveu

Amplasare

Adresă

Alex Burtea

Consultant Vânzari