Apartament nou cu 4 camere de vânzare în Verdi Park Boutique Apartments

Str. Gheorghe Țițeica nr. 162-164
Disponibil
415000 €
+ TVA
502.150
€ TVA Inclus
P.02
4
Camere
2
Băi
1
Parcări
162.14
Suprafață
2026
An Finalizare

Detalii

Detalii

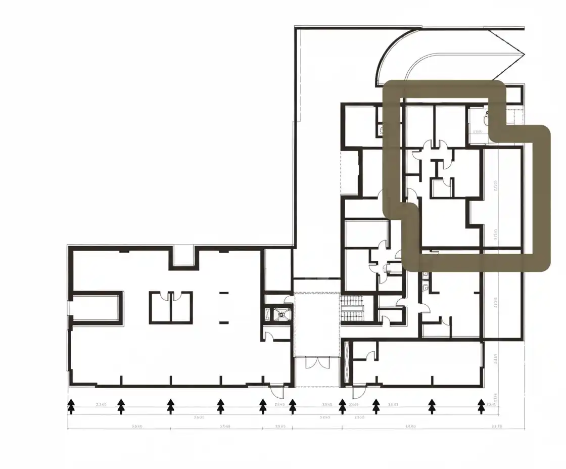
  • 1. Hol 12.75 m²
  • 2. Baie 4.18 m²
  • 3. Dormitor 17.79 m²
  • 4. Baie 4.21 m²
  • 5. Dormitor 13.78 m²
  • 6. Dormitor 14.94 m²
  • 7. Living 21.29 m²
  • 8. Bucatarie 7.04 m²
  • 9. Terasa 3.88 m²
  • 10. Curte 42.11 m²
  • 11. Curte 20.20 m²
  • Suprafață Utilă 162.18 m²
  • Suprafață Totală 162.14 m²

Releveu

Amplasare

Adresă

Alex Burtea

Consultant Vânzari